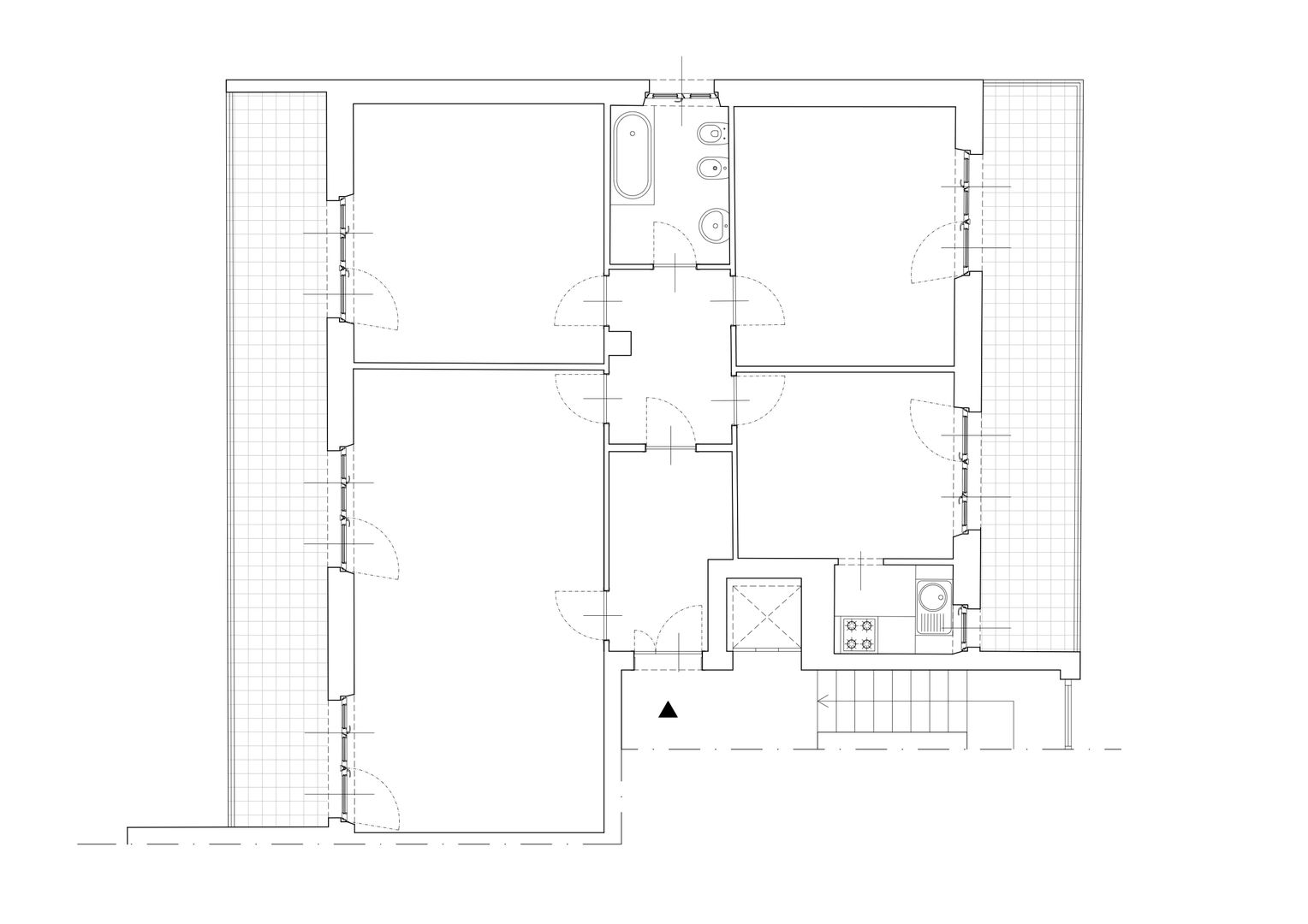
Il progetto prevede la ristrutturazione leggera di un appartamento di 90mq posto al piano primo di un condominio degli anni 60.




L’obbiettivo posto dal cliente era quello di ricavare una camera e un bagno supplementari, contenendo i costi.
La nuova camera è stata ricavata dividendo l’ampio salone, mantenendo l’accesso dalla zona notte e tenendo chiaro lo schema di divisione tra le diverse zone dell’abitazione. Per ricavare il bagno è stato necessario invadere lo spazio di una camera per fare posto ai nuovi piatti doccia. In questo modo è stato possibile inserire nel corridoio una nicchia che ospita in maniera agevole la lavatrice e asciugatrice, prima assenti.
Il progetto si completa con l’installazione di un nuovo impianto di condizionamento, un impianto elettrico a norma ed il ripristino degli impianti idro-sanitari.








Disegni tecnici

