Restyling e trasformazione spaziale
Il progetto ha riguardato la ristrutturazione della cucina di un ampio appartamento sito al primo piano di un palazzo vista parco. La richiesta della cliente, stanca della vecchia immagine anni 90, era quella di un total restyling.
Il progetto tiene conto della necessità di storage del committente e della ricerca di una sofisticata leggerezza. La mia proposta ha previsto:
- La modifica dell’accesso alla cucina;
- La demolizione del vecchio pavimento;
- Il disegno di nuovi arredi su misura.








Fluidità e Luce
Il primo passo è stato quello di traslare la porta esistente, centrando l’ingresso in asse con il disimpegno e la portafinestra verso il terrazzo: in questo modo la cucina, liberandosi di un angolo morto, guadagna spazio e si pone in diretta continuità con l’ingresso e la sala da pranzo.
Questa soluzione crea una fluidità di spazi prima inaspettata e dona una nuova luminosità a tutta la zona giorno. A questo obbiettivo concorre la scelta di utilizzare toni chiari sia nella scelta della pavimentazione che negli arredi.
Materiali e Dettagli Su Misura
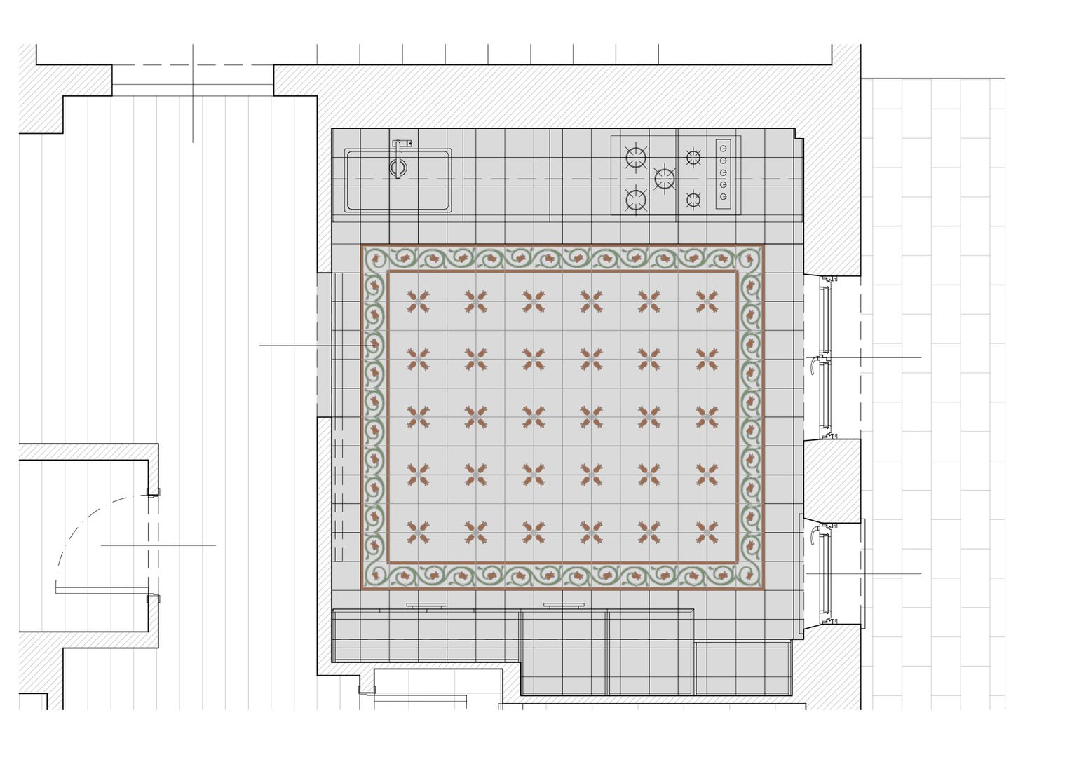
Il nuovo pavimento è frutto di un comune fascino verso uno stile retrò:
- Le cementine realizzate da Grandinetti si sposano benissimo con il parquet esistente;
- La nuova porta tutto vetro effetto cannettato prodotta da Garofoli.
Gli arredi della cucina sono stati disegnati su misura e realizzati da un falegname, pensati per risaltare del pavimento e delle nuove proporzioni dello spazio.
Disegni tecnici


