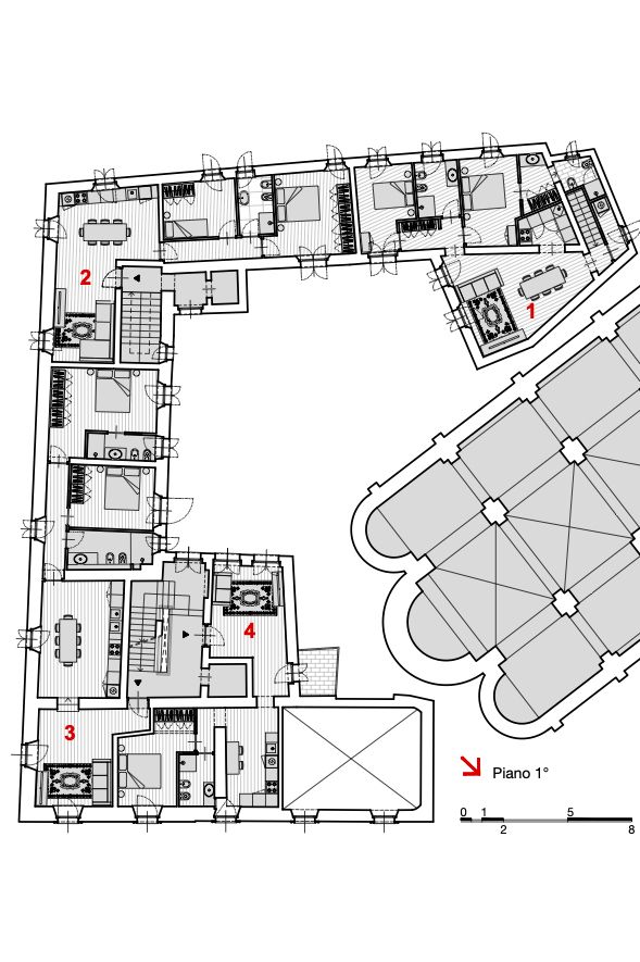
Il progetto è localizzato nel centro storico di Jesi (AN), e prevede la ristrutturazione energetica e strutturale del complesso residenziale Condominio Pergolesi, all’interno del quale si trovano 10 unità immobiliari, una delle quali sita al piano terra di proprietà comunale. Il mio intervento, come tecnico dell’impresa appaltatrice, ha riguardato la progettazione d’interni dell’ingresso e di quattro appartamenti, lo studio della facciata posteriore e delle cornici della facciata fronte piazza.
L’elemento più caratteristico dell’ingresso sono le cementine che animano e colorano lo spazio esaltando lo spirito storico del palazzo. Le mattonelle sono infatti originali e risalgono probabilmente ad una delle ristrutturazioni più recenti che le Suore Giuseppine intrapresero tra il 1910 e 1913. La conservazione di tali elementi di pregio risalta della scelta di conservare l’originale balaustra e accompagnano l’ingresso dalla Piazza G.B. Pergolesi all’interno del condominio fino alla scala principale.



Le cornici della facciata fronte piazza vogliono nobilitare l’intervento di riqualificazione urbana e allo stesso tempo rispettare la storia del palazzo e del contesto attraverso delle linee sobrie ed eleganti che aiutino ad evidenziare le due scale del prospetto.
Le aperture delle facciate esterne sono vincolate, al contrario le facciate interne, in virtù della normativa comunale, potevano essere ripensate con maggiore libertà. Si è deciso pertanto di intervenire con forza nel disegno della facciata posteriore del volume principale, che maggiormente caratterizza le quinte urbane del chiostro interno e che rendeva esplicita una costruzione incoerente e non pianificata per successive addizioni temporali. Il motivo dell’arco applicato a tutte le aperture della facciata riporta unità e coerenza all’intervento, la diversa configurazione di finestre e porte-finestre denota i diversi volumi del complesso.




Appartamento 1
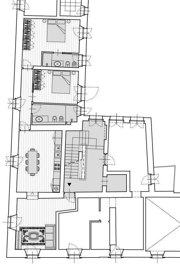
L’appartamento 1 è quello con la forma più irregolare dovuta alla vicinanza con l’attigua Chiesa di San Nicolò. Gode di accesso indipendente che dal piano terra conduce al piano primo, dove troviamo salotto, cucina, lavanderia, due camere e due bagni, uno dei quali privato e dotato di cabina armadio. La cucina invade il blocco altrimenti dedicato alla parte privata della casa, in questo modo è stato possibile configurare il salotto come uno spazio unico che si affaccia verso il cortile interno. Contrapposto al volume della cucina vediamo la cabina armadio della camera padronale che funge da ingresso al secondo bagno privato dell’abitazione.









Appartamento 3
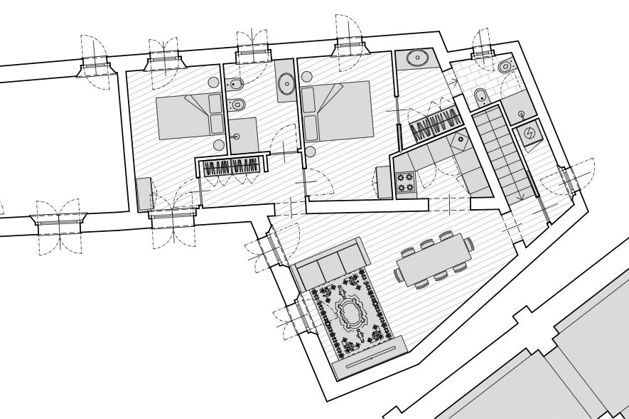
L’appartamento 3, sito al piano primo, ha uno sviluppo longitudinale e gode di tre diverse esposizioni. Attraverso un piccolo disimpegno si entra direttamente in salotto, dalla cui finestra ci si può affacciare su Piazza Pergolesi; lo spazio successivo è la sala pranzo accessibile mediante due gradini incorniciati da un portale. Il corridoio conduce al bagno principale e a due camere, la principale altresì dotata di bagno privato. Tutti questi ambienti prospettano verso il tranquillo cortile interno.







Appartamento 4
L’appartamento 4, contiguo all’appartamento visto in precedenza, ha uno sviluppo planimetrico più contenuto ma gode di una doppia esposizione che permette di usufruire della vista della Piazza e del cortile interno. Si accede direttamente in salotto, abbondantemente illuminato da due finestre ad arco che affacciano verso il chiostro, il terrazzo gode invece della vista sull’abside della Chiesa. Gli altri tre ambienti, cucina, bagno e camera da letto, prospettano invece verso la Piazza Pergolesi.





Appartamento 5
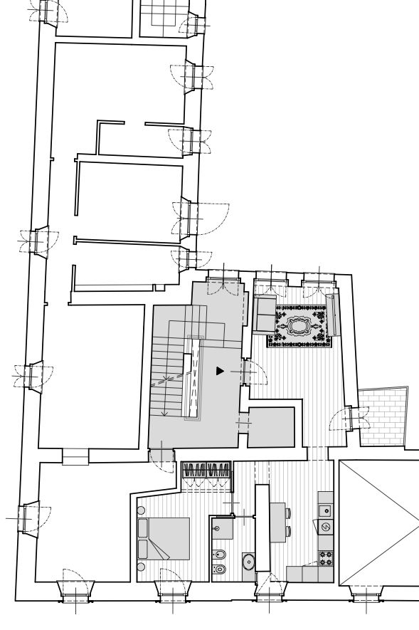
L’appartamento 5, sito al piano secondo, è caratterizzato maggiormente dall’immagine della struttura in legno, che nella particolare conformazione dell’angolo crea un’ambiente carico e suggestivo. Il dialogo tra il parquet a spina e le travi in legno impreziosiscono ed illuminano i diversi ambienti. Il salotto integrato con la cucina affaccia sui vicoli che abbracciano il complesso residenziale, così come lo studio ed il bagno. La Camera matrimoniale prospetta invece verso il cortile interno, godendo di maggiore tranquillità.





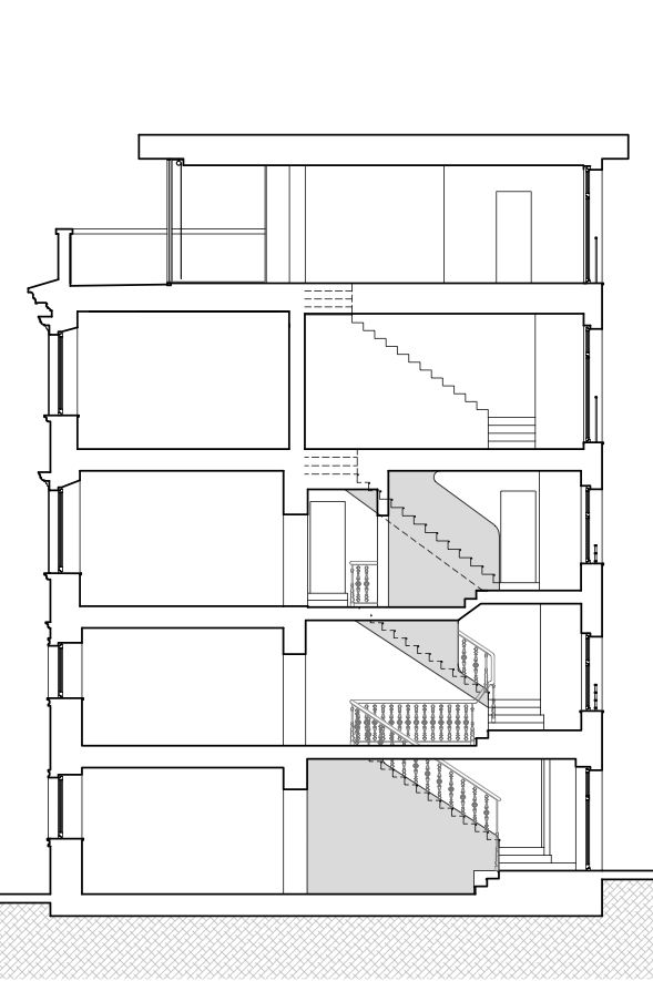
Disegni tecnici





